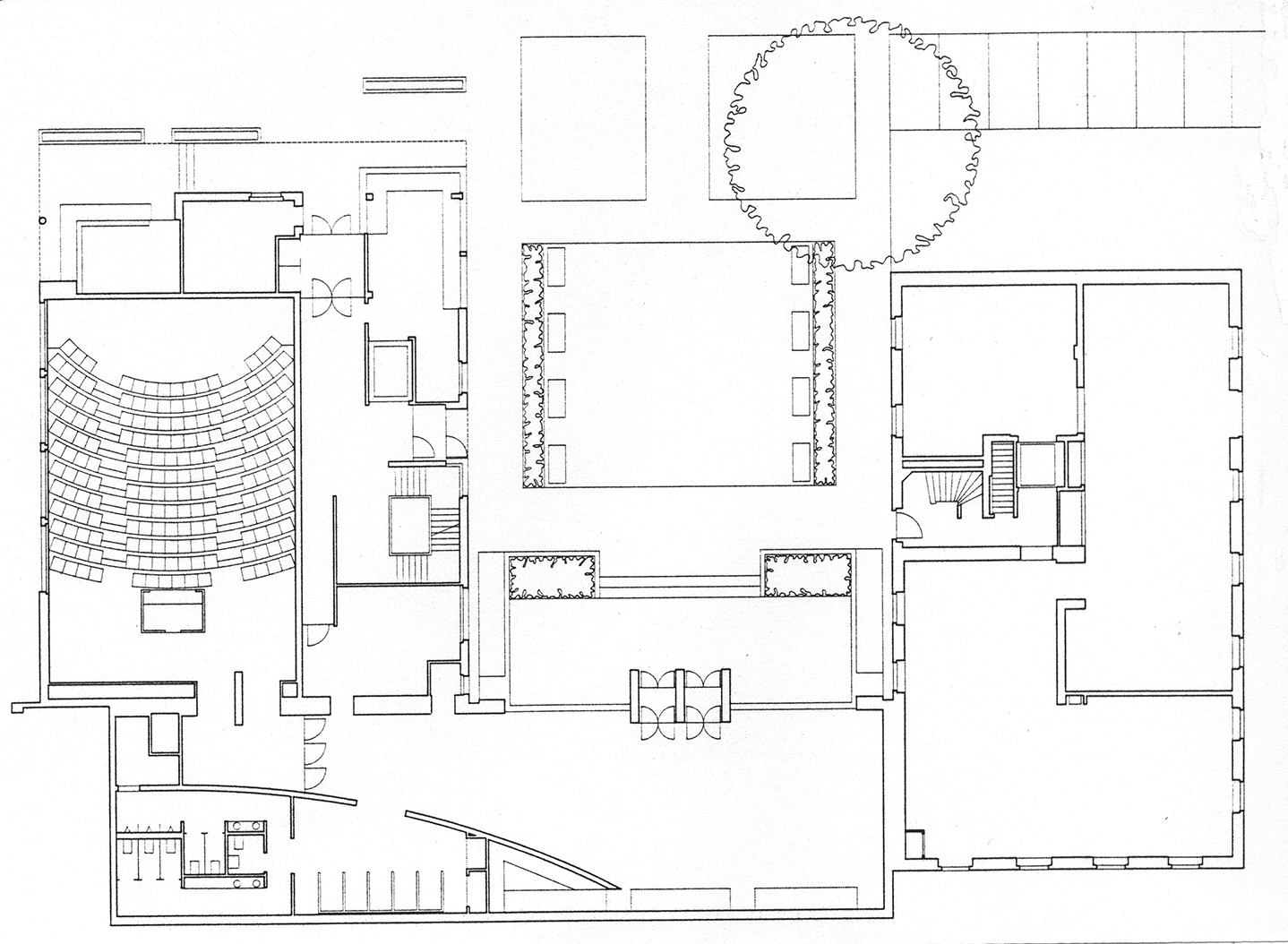
Neubau und Umbau Foyer/Hörsaal Kantonsspital St.Gallen 1994. Mit vonEuw Hauser Prim. Spitalbauamt Kanton St.Gallen.




/
Neubau und Umbau Foyer/Hörsaal Kantonsspital St.Gallen 1994. Mit vonEuw Hauser Prim. Spitalbauamt Kanton St.Gallen.



